︎
AG8 Architektur
Aktuelles
Projekte
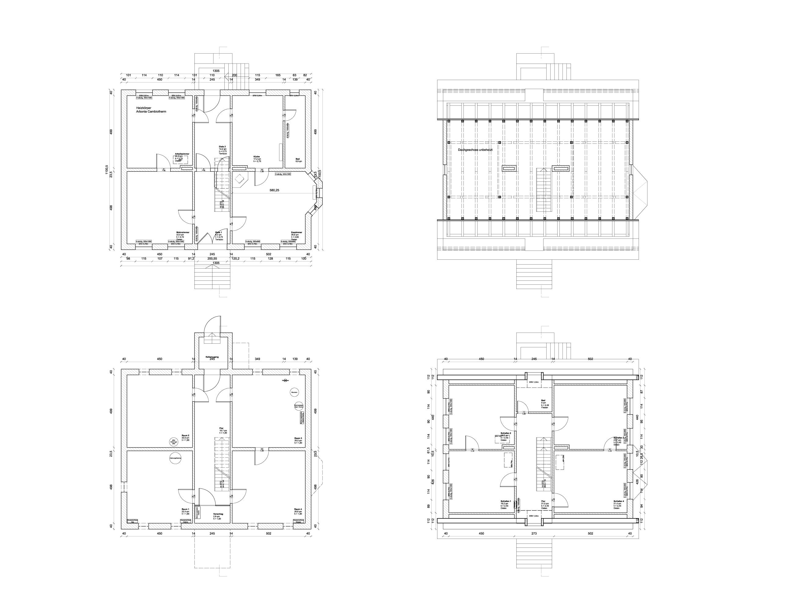
Haus in Königsberg
Veränderungen an einem Haus in der Prignitz
AG8 mit Tabea Däuwel, Nandini Oehlmann, Diane Selma Penrad, Otis Sandsjö, Jacob Steinfelder
seit 2019
Planung und Realisierung
200 qm
Impressum