︎
AG8 Architektur
Aktuelles
Projekte
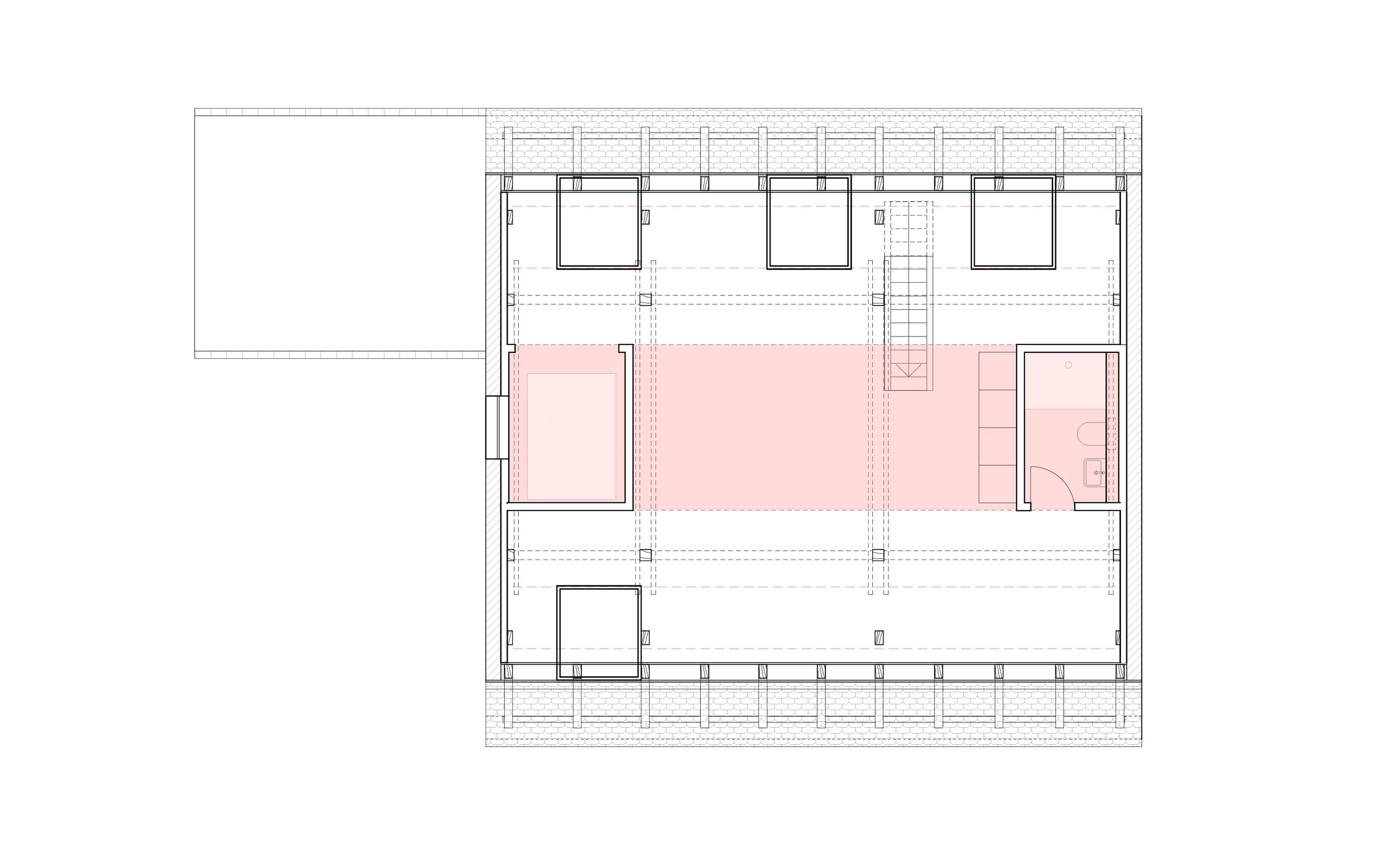
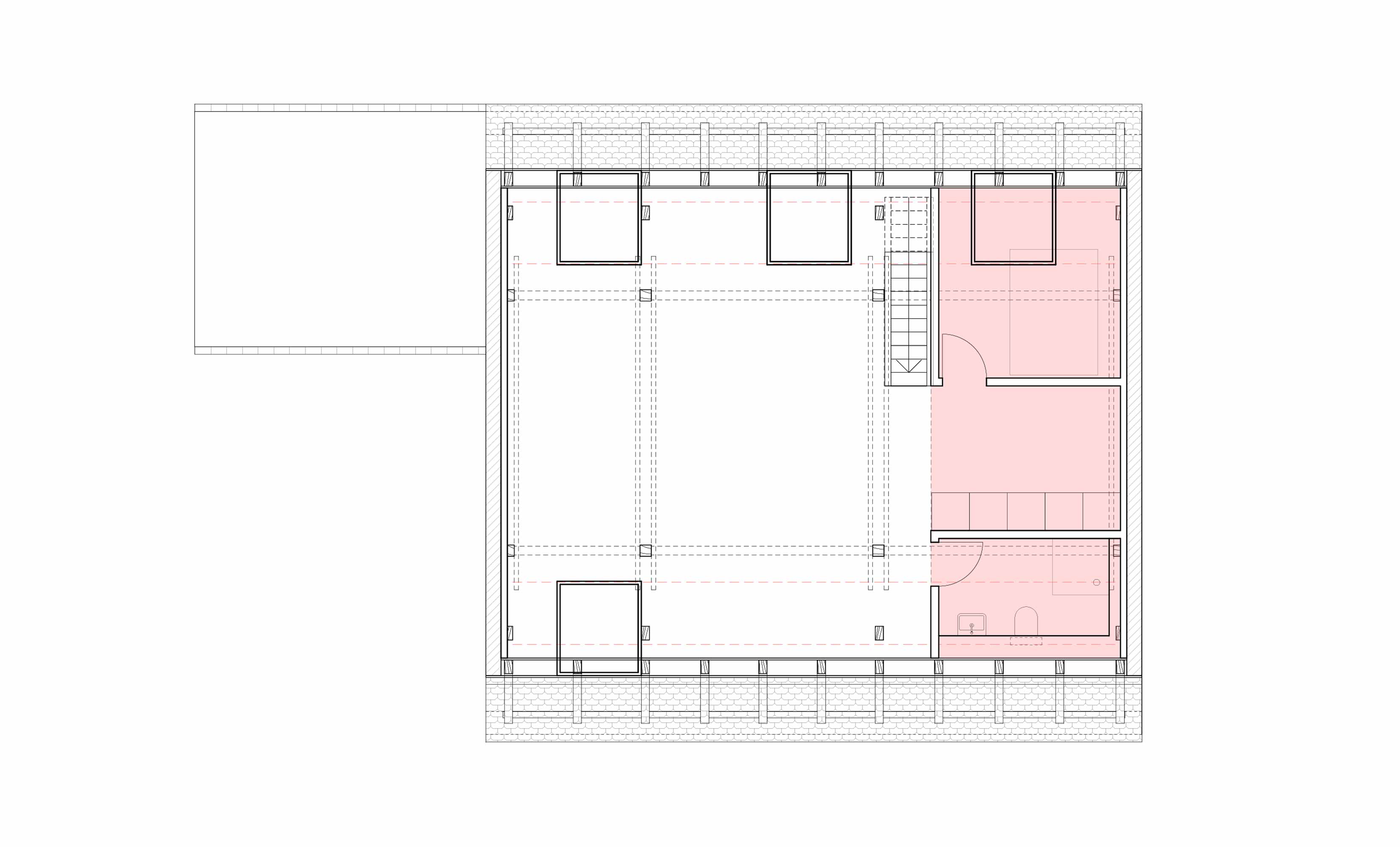
Scheune in Hindenberg
Entwurf für den Ausbau eines Scheunendachs in Brandenburg
AG8
2018
100 qm
Impressum