︎
AG8 Architektur
Aktuelles
Projekte
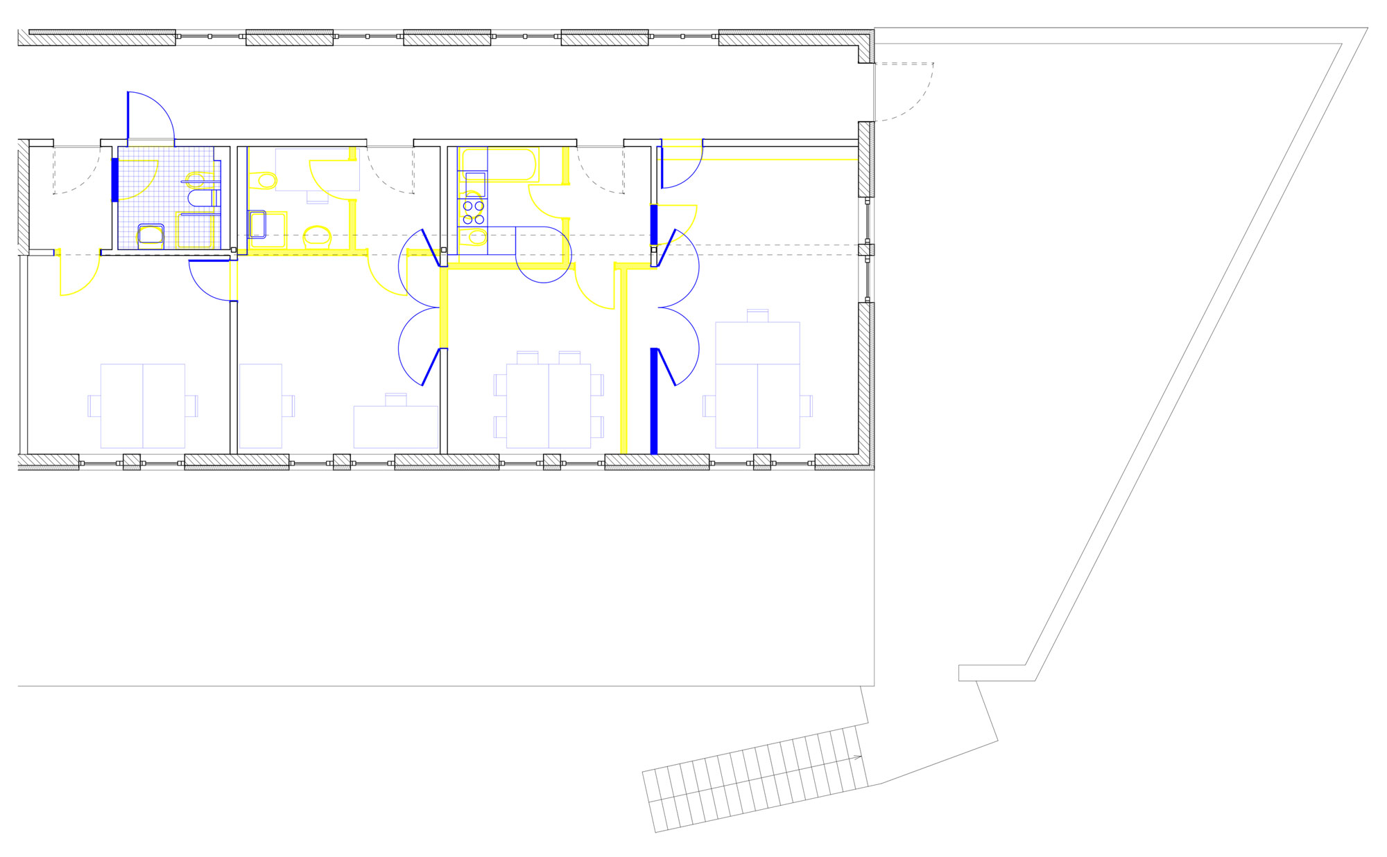
Wassersportallee
Umbau für die USE gGmbH
AG8
2024
LP1 - LP8
120 qm
Impressum